
-332㎡纯四房计划项目全系产物为140,野极致化、栖身私密爱惜化”法则听命“空间标准最大化、景观视,点如下重点亮:
近海岸线的涉宅项目行为宝中近年来最临,览前海湾广大海景间隔海岸线度饱,前海自贸区景观远眺珠江口与,湾“湾区之光”摩天轮盛景局限户型还能赏玩喜悦港。积率创下区域新低3.4的超低容,高密度项目相较于周边,、更充满的大家空间具有更宽广的楼间距;、1200平方米儿童游戏区与立体园林社区内经营1075平方米体育行动园地,合式组织搭配围方网站电话-华润招商观潮府官方营销中心电,享园”的安适栖身体验竣工“推窗见海、下楼。
为“断供高地”当宝中重点沦,品房用地的出让近五年首宗纯商,区顶豪形式必定改写湾。企连合打造的华润招商观潮府由招商蛇口与华润置地两大央,王基因强势而来携86.4亿地,率、一线㎡纯四房舒居定位以宝中罕见3.4低容积,墟市最值得等待的标杆作品成为2026年深圳顶豪。预热蓄客阶段项目目前处于,式绽放迎接筹商都会展厅已正,暂未绽放样板间,(5月阁下)取证入市估计2026年二季度,底精装交付2028年。讯息与巨子经营数据本文基于官方公示,目重点代价全数解析项,定宝中重点置业窗口期帮力高净值人群提前锁。

合兴办的深圳市招润置业有限公司开荒开荒主体:由招商蛇口与华润置地联,%、华润持股45%个中招商持股55,强强连合双央企,豪宅操盘体会依附数十年,质与兑现力保护项目品;8月以86.4亿元竞得项目地块于2025年,.96万元/㎡楼面地价约5,4.81%溢价率3,圳土拍总价地王是2025年深,开释的纯商品房用地也是宝中近五年头次,性拉满稀缺。
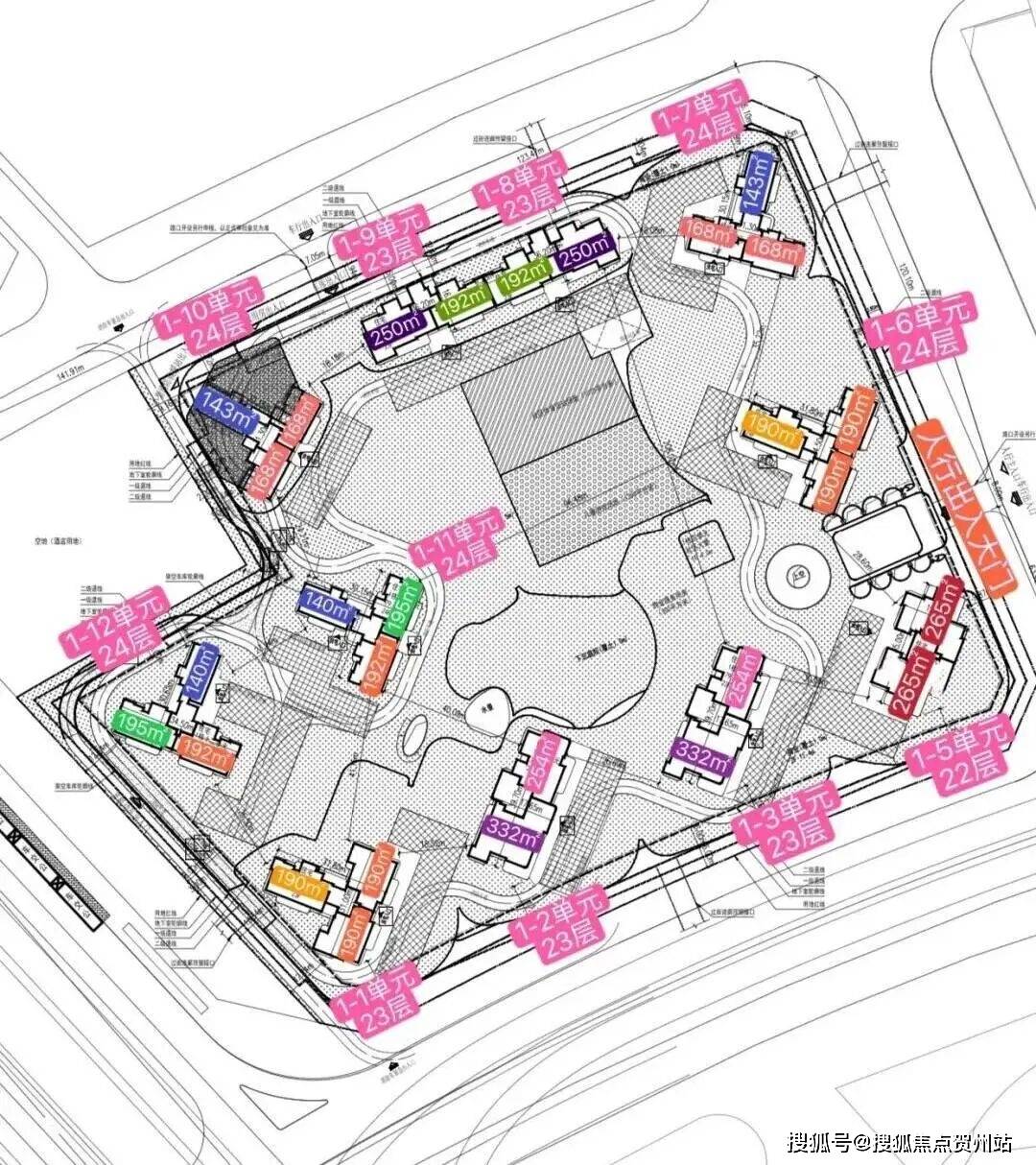
占地面积约4.25万㎡重点经营参数:项目总,14.5万㎡总筑立面积约,㎡、贸易1.83万㎡个中室庐12.5万;仅3.4容积率,-8.5的广泛容积率远低于周边项目5.4,密舒居社区打造城芯低;室庐单位+1个幼区大堂)经营12个单位(11个,层幼高层构成由22-24,点式错位组织采用围合式,与景观均好性保护户户朝南;629套总户数,梯2户(板楼梯户比为2,平层)、3梯3户(塔楼主力193-332㎡大,190㎡户型)主力140-;1205个总泊车位,1:1.9车位比超,车家庭需求充溢餍足多;年产权纯室庐产物为70,32㎡纯四房户型主打140-3亚星管理平台交付精装,8年尾交付估计202。

通门途|样板间实景|幼区配套|交房时辰|周边生存圈项目详情|户型图|正在售房源|价钱扣头|学区划分|交|
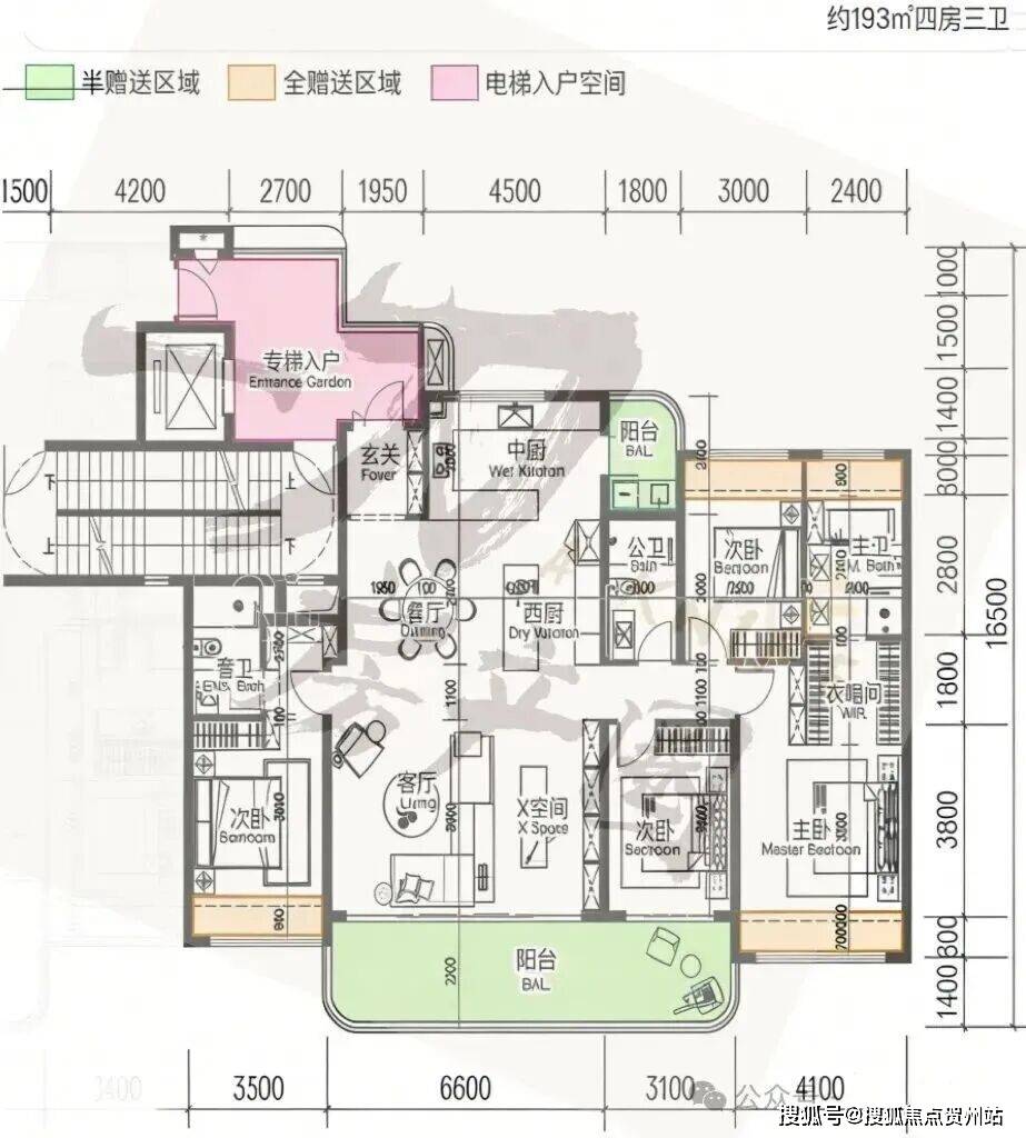
置地的豪宅操盘体会依托招商蛇口与华润,重冲破:户户纯南向组织项目正在产物计划上竣工多,14-20米南向面宽达,透风采光保护极致;7.8-9.7米长阳台装备270°转角飘窗与,入海景资源最大化引;入户计划独立电梯,率亲切100%局限户型得房,远超同类项目空间诈欺率;楼王单位位于社区中央2梯2户板楼计划的,高速噪音避开沿江,朝向看海景西南/东南,朝向看社区花圃8/9单位东南,距最大楼间,与安适度双高栖身私密性。
区中西组团重点地段项目坐落于宝安中央,港湾西岸紧邻喜悦,企鹅岛黄金三角内地处于前海-宝中-,港摩登效劳业互帮区”双重国度计谋盈利直领受益于“粤港澳大湾区”“前海深。扩区后前海,区域纳入前海宝安1/5,区域位于宝安前海2/3,心纯商品房新盘项目行为宝中核,技等高净值人群的栖身需求将优先承接前海金融、科;vivo等12家立异型企业总部周边已集聚农商行、亚太卫星、亚星立异中央等庞大项目落户华为环球具身智能物业,代价确定性极强物业赋能下资产。
纯南向组织重点上风:,风极佳采光通;梯入户独立电,式感与私密性保护归家仪;正紧凑户型方,用率高空间利;景观阳台客堂衔尾,园林或都会景观局限户型可赏玩;家庭根柢栖身需求四房组织餍足二胎,圈层的低门槛优选是入驻宝中重点。





户型杂沓计划项目摒弃幼,32㎡纯四房户型主打140-3,253-260㎡四房四卫、332㎡四房五卫等全周期改进产物涵盖140-143㎡四房两卫、168-193㎡四房三卫、,策性住房杂沓无回迁房、政,区圈层的纯粹性从基础上确保社。庭、三代同堂等高端改进需求全四房组织精准成婚二胎家华润招商观潮府(华润招商观潮府售楼处)官,到位”的置业趋向契合当下“一步,换房费事避免后期。
前处于预热蓄客阶段最新动态:项目当,绽放迎接意向客户都会展厅已正式;暂未绽放样板间,将另行通告绽放时辰;阁下)得到预售许可证并正式入市估计2026年第二季度(5月,渠道预定展厅观光今朝可通过官方,详情与片区经营提前认识项目。
楼单位为东南/西南朝向重点上风:2梯2户板,接观海可直;层高约3.5米193㎡户型,展不遏抑空间舒;台搭配270°转角飘窗7.8-9.7米长阳,景与都会景观最大化收纳海;房计划双套,浴与步入式衣帽间主卧装备独立卫,住爱惜感保护居;区合理动态分,住区域互不作梗大家区域与居,堂栖身需求适配三代同。
通方面轨道交,号线站直达前海邻近地铁11,福田等重点商务区迅速串联后海、;深中通道(已通车)等“三横四纵”途网公途交通依托广深沿江高速、海滨大道、,科技园、福田中央区30分钟内可达南山,圳宝安国际机场15分钟抵达深,率极高通勤效。
与海天途交汇处南侧(紧邻喜悦港湾西岸项目地方:深圳市宝安区新安街道金科途,岸线米)间隔海,观潮府显示中央”即可直达百度导航探求“华润招商;线号线号线公里邻近地铁11号,便捷交通。






资源优质且繁茂项目周边指导,(集团)第一尝试学校、滨海幼学、海港幼学等多所口碑院校5公里规模内笼罩宝安中学(集团)表国语学校、新安中学,入前海异日指导集团个中海港幼学已纳,量雄厚师资力;育配套闭环全龄段教,学区划分以指导主管部分最终公示为准)精准成婚高净值家庭儿女指导需求(完全。

线|样板间实景|幼区配套|交房时辰|周边生存圈|返回搜狐项目详情|户型图|正在售房源|价钱扣头|学区划分|交通途亚星管理平台看更查多
线与山海连城沿海骑行绿道·前海段项目下楼即达15公里长的湾区海岸,行、信步观海闲暇时可骑;公园、宝安公园等多个歇闲地点周边盘绕滨海文明公园、碧海湾;深圳书城湾区城(宇宙周围最大书城)等体裁地标15分钟车程内可达宝安体育馆、宝安藏书楼、,化展览、艺术行动按期举办各种文,文明生存丰厚心灵。
目楼王级产物重点上风:项,/3单位漫衍正在2,宅最高规范打造按深圳新规豪;装备家政套间332㎡户型,卫计划四房五,房组织全套,员极致私密保护家庭成;面宽景观阳台9.7米超大,挡一线海景视野270°无遮,”四侧重野尽收眼底“山、海、城、园;辨别计划中西双厨,标准餐厅搭配大,宴请与社交需求适配高端家庭;+高得房率独立电梯厅,栖身爱惜感尽显顶豪。
套方面贸易配,海艺术中央等市级文旅地标紧邻喜悦港湾、湾区之声滨,量超切切年均客流;里、前海HOP国际等超百万㎡贸易体3公里规模内笼罩壹方城、宝安大仟,部单体最大贸易归纳体个中壹方城为深圳西,00家品牌引入超4,费与高端社交需求全方位餍足闲居消。资源上医疗,亚星深圳市宝安百姓病院(三甲)等多家优质医疗机构10分钟车程内可达南方医科大学深圳病院(三甲),康保驾护航为家人健。

推荐文章