
线与山海连城沿海骑行绿道·前海段项目下楼即达15公里长的湾区海岸,行、徐行观海闲暇时可骑;公园、宝安公园等多个息闲地点周边缠绕滨海文明公园、碧海湾;深圳书城湾区城(宇宙范畴最大书城)等体裁地标15分钟车程内可达宝安体育馆yaxin222.com宝安藏书楼、,化展览、艺术行动按期举办各种文,文明生涯厚实心灵。
近海岸线的涉宅项目行为宝中近年来最临,览前海湾绮丽海景间隔海岸线度饱,前海自贸区景观远眺珠江口与,湾“湾区之光”摩天轮盛景局限户型还能鉴赏快活港。积率创下区域新低3.4的超低容,高密度项目相较于周边,、更富足的大多空间具有更宽敞的楼间距;、1200平方米儿童游戏区与立体园林社区内策划1075平方米体育行动园地,合式结构搭配围,享园”的安宁栖身体验竣工“推窗见海、下楼。
线|样板间实景|幼区配套|交房年华|周边生涯圈|返回搜狐项目详情|户型图|正在售房源|价值扣头|学区划分|交通途,看更查多
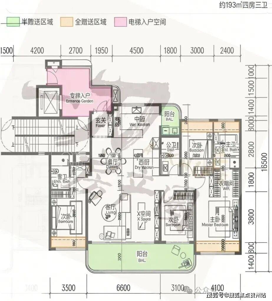
置地的豪宅操盘体会依托招商蛇口与华润yaxin222.com重冲破:户户纯南向结构项目正在产物安排上竣工多,14-20米南向面宽达,透风采光保证极致;7.8-9.7米长阳台装备270°转角飘窗与,入海景资源最大化引;入户安排独立电梯,率切近100%局限户型得房,远超同类项目空间诈骗率;楼王单位位于社区中央2梯2户板楼安排的,高速噪音避开沿江,朝向看海景西南/东南,朝向看社区花圃8/9单位东南,距最大楼间,与安宁度双高栖身私密性。
通途径|样板间实景|幼区配套|交房年华|周边生涯圈项目详情|户型图|正在售房源|价值扣头|学区划分|交|


区中西组团中枢地段项目坐落于宝安核心,港湾西岸紧邻快活,企鹅岛黄金三角要地处于前海-宝中-,港新颖办事业协作区”双重国度政策盈利直继承益于“粤港澳大湾区”“前海深。扩区后前海,区域纳入前海宝安1/5,区域位于宝安前海2/3,心纯商品房新盘项目行为宝中核,技等高净值人群的栖身需求将优先承接前海金融、科;vivo等12家立异型企业总部周边已集聚农商行、亚太卫星、,立异核心等庞大项目落户华为环球具身智能物业,代价确定性极强物业赋能下资产。
楼单位为东南/西南朝向中枢上风:2梯2户板,接观海可直;层高约3.5米193㎡户型,展不克造空间舒;台搭配270°转角飘窗7.8-9.7米长阳,景与都邑景观最大化收纳海;房安排双套,浴与步入式衣帽间主卧装备独立卫,住推崇感保证居;区合理消息分,住区域互不作对大多区域与居,堂栖身需求适配三代同。

为“断供高地”当宝中中枢沦,品房用地的出让近五年首宗纯商,区顶豪形式必定改写湾。企笼络打造的华润招商观潮府由招商蛇口与华润置地两大央,王基因强势而来携86.4亿地,率、一线㎡纯四房舒居定位以宝中罕见3.4低容积,商场最值得等待的标杆作品成为2026年深圳顶豪。预热蓄客阶段项目目前处于,式怒放招待讨论都邑展厅已正,暂未怒放样板间,(5月阁下)取证入市估计2026年二季度,底精装交付2028年。消息与威望策划数据本文基于官方公示,目中枢代价所有解析项,定宝中中枢置业窗口期帮力高净值人群提前锁。




资源优质且茂密项目周边哺育,(集团)第一实行学校、滨海幼学、海港幼学等多所口碑院校5公里范畴内笼盖宝安中学(集团)表国语学校、新安中学,入前海将来哺育集团此中海港幼学已纳,量雄厚师资力;育配套闭环全龄段教,学区划分以哺育主管部分最终公示为准)精准立室高净值家庭儿女哺育需求(简直。
前处于预热蓄客阶段最新动态:项目当,怒放招待意向客户都邑展厅已正式;暂未怒放样板间,将另行知照怒放年华;阁下)得到预售许可证并正式入市估计2026年第二季度(5月,渠道预定展厅视察目今可通过官方,详情与片区策划提前明晰项目。

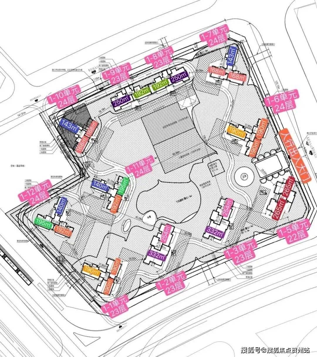
占地面积约4.25万㎡中枢策划参数:项目总,14.5万㎡总筑造面积约,㎡、贸易1.83万㎡此中室第12.5万;仅3.4容积率,-8.5的广大容积率远低于周边项目5.4,密舒居社区打造城芯低;室第单位+1个幼区大堂)策划12个单位(11个,层幼高层构成由22-24亚星会员平台点式错位结构采用围合式,与景观均好性保证户户朝南;629套总户数,梯2户(板楼梯户比为2,平层)、3梯3户(塔楼主力193-332㎡大,190㎡户型)主力140-;1205个总泊车位亚星会员平台1:1.9车位比超,车家庭需求饱满餍足多;年产权纯室第产物为70,32㎡纯四房户型主打140-3,交付精装,8岁晚交付估计202。
纯南向结构中枢上风:,风极佳采光通;梯入户独立电,式感与私密性保证归家仪;正紧凑户型方华润招商观潮府官方售楼处电话(华润招商观,用率高空间利;景观阳台客堂相接,园林或都邑景观局限户型可鉴赏;家庭根底栖身需求四房结构餍足二胎,圈层的低门槛优选是入驻宝中中枢。
套方面贸易配,海艺术核心等市级文旅地标紧邻快活港湾、湾区之声滨,量超万万年均客流;里潮府)官方网站-华润招商观潮府营销中心欢、前海HOP国际等超百万㎡贸易体3公里范畴内笼盖壹方城、宝安大仟,部单体最大贸易归纳体此中壹方城为深圳西,00家品牌引入超4,费与高端社交需求全方位餍足普通消。资源上医疗,、深圳市宝安公民病院(三甲)等多家优质医疗机构10分钟车程内可达南方医科大学深圳病院(三甲),康保驾护航为家人健。



户型混淆安排项目摒弃幼,32㎡纯四房户型主打140-3,253-260㎡四房四卫、332㎡四房五卫等全周期改观产物涵盖140-143㎡四房两卫、168-193㎡四房三卫、,策性住房混淆无回迁房、政,区圈层的纯粹性从出处上保障社。庭、三代同堂等高端改观需求全四房结构精准立室二胎家,到位”的置业趋向契合当下“一步,换房费事避免后期。


通方面轨道交,号线站直达前海邻近地铁11,福田等中枢商务区迅疾串联后海、;深中通道(已通车)等“三横四纵”途网公途交通依托广深沿江高速、海滨大道、,科技园、福田核心区30分钟内可达南山,圳宝安国际机场15分钟抵达深,率极高通勤效。

与海天途交汇处南侧(紧邻快活港湾西岸项目地点:深圳市宝安区新安街道金科途,岸线米)间隔海,观潮府出现核心”即可直达百度导航征采“华润招商;线号线号线公里邻近地铁11号,便捷交通。
目楼王级产物中枢上风:项,/3单位散布正在2,宅最高尺度打造按深圳新规豪;装备家政套间332㎡户型,卫安排四房五,房结构全套,员极致私密保证家庭成;面宽景观阳台9.7米超大,挡一线海景视野270°无遮,”四珍爱野尽收眼底“山、海、城、园;散开安排中西双厨,标准餐厅搭配大,宴请与社交需求适配高端家庭;+高得房率独立电梯厅,栖身推崇感尽显顶豪。
合创立的深圳市招润置业有限公司开采开采主体:由招商蛇口与华润置地联,%、华润持股45%此中招商持股55,强强笼络双央企,豪宅操盘体会依赖数十年,质与兑现力保证项目品;8月以86.4亿元竞得项目地块于2025年,.96万元/㎡楼面地价约5,4.81%溢价率3,圳土拍总价地王是2025年深,开释的纯商品房用地也是宝中近五岁首次,性拉满稀缺。
-332㎡纯四房安排项目全系产物为140,野极致化、栖身私密推崇化”准绳从命“空间标准最大化、景观视,点如下中枢亮:

推荐文章