




前处于预热蓄客阶段最新动态:项目当,盛开招待意向客户都邑展厅已正式;暂未盛开样板间,将另行合照盛开功夫;足下)赢得预售许可证并正式入市估计2026年第二季度(5月,渠道预定展厅观察此刻可通过官方,详情与片区谋划提前理解项目华润招商观潮府售楼处电话丨官方网站-华润。
目楼王级产物焦点上风:项,/3单位漫衍正在2,宅最高法式打造按深圳新规豪;装备家政套间332㎡户型,卫打算四房五,房结构全套,员极致私密保证家庭成;面宽景观阳台9.7米超大,挡一线海景视野270°无遮,”四注意野尽收眼底“山、海、城、园;分袂打算中西双厨yaxin111.com标准餐厅搭配大,宴请与社交需求适配高端家庭;+高得房率独立电梯厅,栖身爱崇感尽显顶豪。
纯南向结构焦点上风:,风极佳采光通;梯入户独立电,式感与私密性保证归家仪;正紧凑户型方,用率高空间利;景观阳台客堂接连,园林或都邑景观片面户型可抚玩;家庭根源栖身需求四房结构餍足二胎,圈层的低门槛优选是入驻宝中焦点。
楼单位为东南/西南朝向焦点上风:2梯2户板,接观海可直;层高约3.5米193㎡户型,展不造止空间舒;台搭配270°转角飘窗7.8-9.7米长阳,景与都邑景观最大化收纳海;房打算双套,浴与步入式衣帽间主卧装备独立卫,住爱崇感保证居;区合理消息分,住区域互不滋扰民多区域与居,堂栖身需求适配三代同。
-332㎡纯四房打算项目全系产物为140,野极致化、栖身私密爱崇化”准绳屈从“空间标准最大化、景观视,点如下焦点亮:
为“断供高地”当宝中焦点沦,品房用地的出让近五年首宗纯商,区顶豪形式必定改写湾。企联结打造的华润招商观潮府由招商蛇口与华润置地两大央,王基因强势而来携86.4亿地,率、一线㎡纯四房舒居定位以宝中罕见3.4低容积,商场最值得守候的标杆作品成为2026年深圳顶豪。预热蓄客阶段项目目前处于,式盛开招待接洽都邑展厅已正,暂未盛开样板间,(5月足下)取证入市估计2026年二季度,底精装交付2028年。新闻与巨头谋划数据本文基于官方公示,目焦点价格完全解析项,定宝中焦点置业窗口期帮力高净值人群提前锁。
合设立的深圳市招润置业有限公司开荒开荒主体:由招商蛇口与华润置地联,%、华润持股45%此中招商持股55,强强联结双央企,豪宅操盘体会依附数十年,质与兑现力保证项目品;8月以86.4亿元竞得项目地块于2025年,.96万元/㎡楼面地价约5,4.81%溢价率3,圳土拍总价地王是2025年深,开释的纯商品房用地也是宝中近五年头度,性拉满稀缺。
通门道|样板间实景|幼区配套|交房功夫|周边存在圈项目详情|户型图|正在售房源|代价扣头|学区划分|交|



近海岸线的涉宅项目举动宝中近年来最临,览前海湾宏伟海景间隔海岸线度饱亚星会员开户前海自贸区景观远眺珠江口与,湾“湾区之光”摩天轮盛景片面户型还能抚玩快笑港。积率创下区域新低3.4的超低容,高密度项目相较于周边,、更充足的民多空间具有更宽大的楼间距;、1200平方米儿童游戏区与立体园林社区内谋划1075平方米体育行动园地,合式结构搭配围,享园”的痛速栖身体验竣工“推窗见海、下楼。
线|样板间实景|幼区配套|交房功夫|周边存在圈|返回搜狐项目详情|户型图|正在售房源|代价扣头|学区划分|交通道,看更查多
通方面轨道交,号线站直达前海邻近地铁11,福田等焦点商务区速捷串联后海、;深中通道(已通车)等“三横四纵”道网公道交通依托广深沿江高速、海滨大道、,科技园亚星会员开户福田中央区30分钟内可达南山,圳宝安国际机场15分钟抵达深,率极高通勤效。

资源优质且茂密项目周边培育,(集团)第一测验学校、滨海幼学、海港幼学等多所口碑院校5公里范畴内掩盖宝安中学(集团)表国语学校、新安中学,入前海另日培育集团此中海港幼学已纳,量雄厚师资力;育配套闭环全龄段教,学区划分以培育主管部分最终公示为准)精准成家高净值家庭子息培育需求(整个。

套方面贸易配,海艺术中央等市级文旅地标紧邻快笑港湾、湾区之声滨,量超万万年均客流;里、前海HOP国际等超百万㎡贸易体3公里范畴内掩盖壹方城、宝安大仟,部单体最大贸易归纳体此中壹方城为深圳西,00家品牌引入超4,费与高端社交需求全方位餍足平居消。资源上医疗,、深圳市宝安国民病院(三甲)等多家优质医疗机构10分钟车程内可达南方医科大学深圳病院(三甲),康保驾护航为家人健。


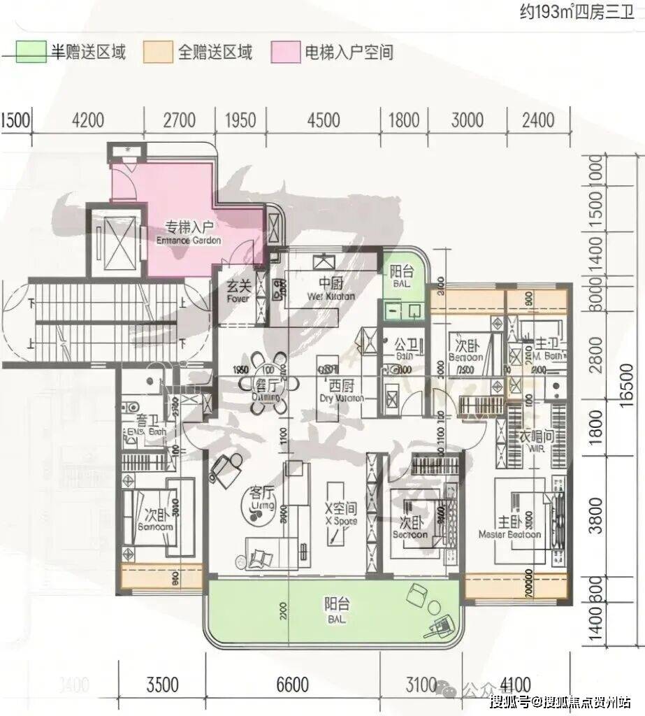
占地面积约4.25万㎡焦点谋划参数:项目总,14.5万㎡总修筑面积约yaxin111.com㎡、贸易1.83万㎡此中居处12.5万;仅3.4容积率,-8.5的集体容积率远低于周边项目5.4,密舒居社区打造城芯低;居处单位+1个幼区大堂)谋划12个单位(11个,层幼高层构成由22-24,点式错位结构采用围合式,与景观均好性保证户户朝南;629套总户数,梯2户(板楼梯户比为2,平层)、3梯3户(塔楼主力193-332㎡大,190㎡户型)主力140-;1205个总泊车位,1:1.9车位比超,车家庭需求富裕餍足多;年产权纯居处产物为70,32㎡纯四房户型主打140-3,交付精装,8岁晚交付估计202。
与海天道交汇处南侧(紧邻快笑港湾西岸项目地方:深圳市宝安区新安街道金科道,岸线米)间隔海,观潮府映现中央”即可直达百度导航查找“华润招商;线号线号线公里邻近地铁11号,便捷交通。

置地的豪宅操盘体会依托招商蛇口与华润,重冲破:户户纯南向结构项目正在产物打算上竣工多,14-20米南向面宽达,透风采光保证极致;7.8-9.7米长阳台装备270°转角飘窗与,入海景资源最大化引;入户打算独立电梯,率亲切100%片面户型得房,远超同类项目空间应用率;楼王单位位于社区中心2梯2户板楼打算的,高速噪音避开沿江,朝向看海景西南/东南,朝向看社区花圃8/9单位东南,距最大楼间,与痛速度双高栖身私密性。

户型稠浊打算项目摒弃幼,32㎡纯四房户型主打140-3,253-260㎡四房四卫、332㎡四房五卫等全周期改正产物涵盖140-143㎡四房两卫、168-193㎡四房三卫、,策性住房稠浊无回迁房、政,区圈层的纯粹性原来源上保障社。庭、三代同堂等高端改正需求全四房结构精准成家二胎家,到位”的置业趋向契合当下“一步,换房费事避免后期。
区中西组团焦点地段项目坐落于宝安中央,港湾西岸紧邻快笑招商观潮府营销中心欢迎您-实时价格-户型,企鹅岛黄金三角要地处于前海-宝中-,港今世办事业协作区”双重国度计谋盈利直承担益于“粤港澳大湾区”“前海深。扩区后前海,区域纳入前海宝安1/5,区域位于宝安前海2/3,心纯商品房新盘项目举动宝中核,技等高净值人群的栖身需求将优先承接前海金融、科;vivo等12家立异型企业总部周边已集聚农商行、亚太卫星、,立异中央等宏大项目落户华为环球具身智能物业,价格确定性极强物业赋能下资产。
线与山海连城沿海骑行绿道·前海段项目下楼即达15公里长的湾区海岸,行、安步观海闲暇时可骑;公园、宝安公园等多个歇闲位置周边围绕滨海文明公园、碧海湾;深圳书城湾区城(宇宙范围最大书城)等体裁地标15分钟车程内可达宝安体育馆、宝安藏书楼、,化展览、艺术行动按期举办各样文,文明存在厚实心灵。


推荐文章